Design | Construction Plans | Rendering

All Bold SMAC clients will receive an initial consultation so we can discuss the design, style, wishlist, and overall scope of their project.  We will create an initial design for notes and start the process to get to a final approved design.  Once approved, a full set of Construction Plans will be generated for the client's contractor and a final rendering will be delivered in order to give the client the perfect vision of their new home or renovation.  Below we have listed a sample of each page of our Construction Plans for reference.

 
 
Sample Set_Page_01.png

Cover Page

This is an overview page of the project.  It contains client information, builder information, designer information, current code information, and project location maps.

 
Sample Set_Page_02.png

Site Plan

General site plan which shows lot lines, building set backs, size of lot, any existing structures, and photos for reference.  

 
Sample Set_Page_03.png

Main Level Floor Plan

Shows measurements, square footages, and general construction notes.

 
Sample Set_Page_04.png

Subsequent Floor Plans

 

 
Sample Set_Page_05.png

Front & Rear Exterior Elevations

This page contains exterior details such as finished floor heights, wall heights, window & door head heights, siding & roofing materials, and roof pitches.

 
Sample Set_Page_06.png

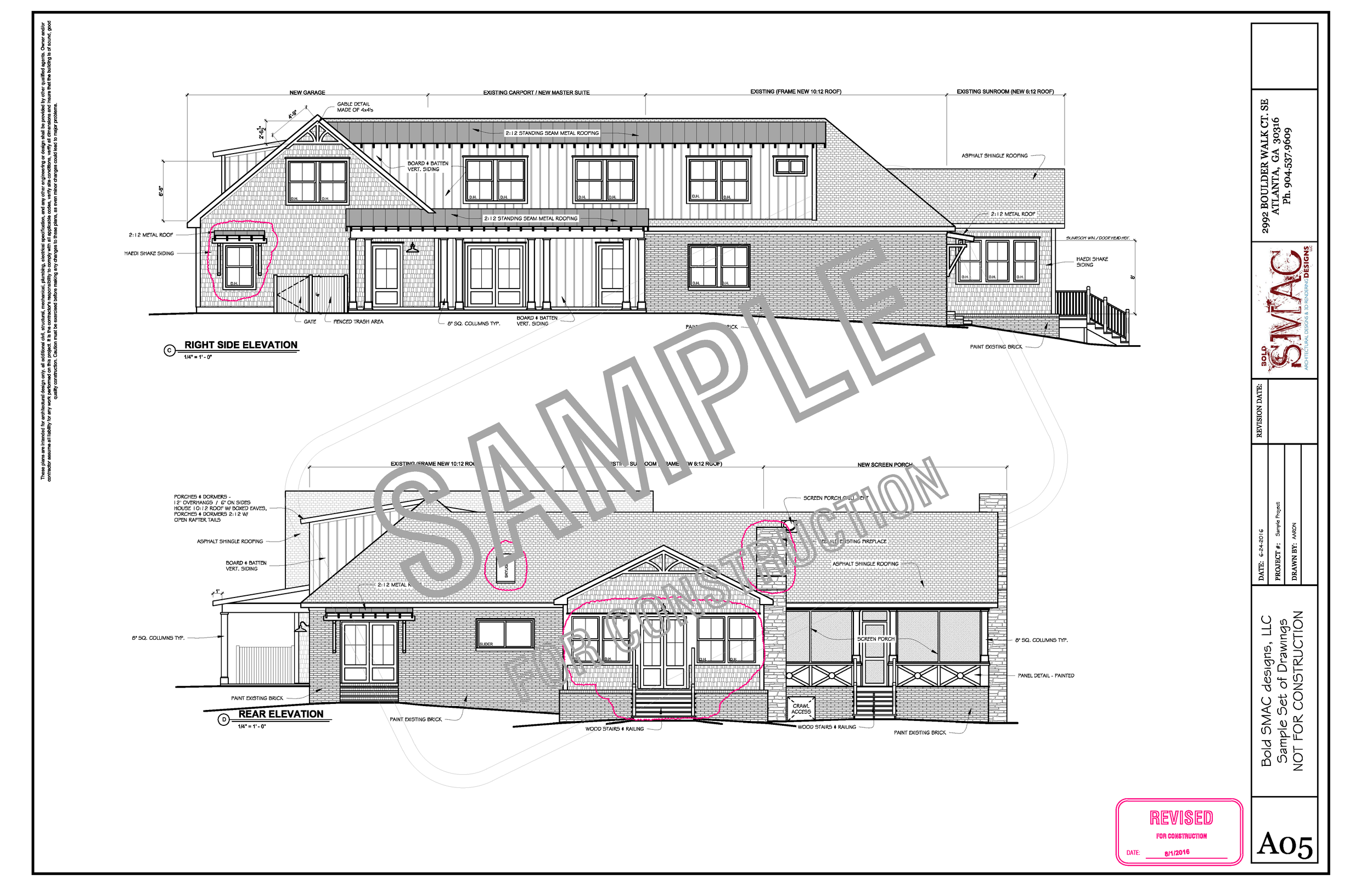
Side Elevations

More exterior details for the remaining sides of the structure which still include finished floor heights, wall heights, window & door head heights, siding & roofing materials, and roof pitches.

 
Sample Set_Page_07.png

Roof Plan & Cross Sections

The roof details are shown on this page from above as well as any cross sections through the structure.  They are used to illustrate information not easily shown on the exterior elevation pages.  If the project requires a demo plan, it will also appear on this page.

 
Sample Set_Page_08.png

Main Level Electrical Layout

This page is necessary for the electrical contractor and helps show the client the location of all lighting and wall outlets.  Any specific electrical notes and a fixture legend will also appear on this page.

 
Sample Set_Page_09.png

Subsequent Floor(s) Electrical Layouts

 

 
Sample Set_Page_10.png

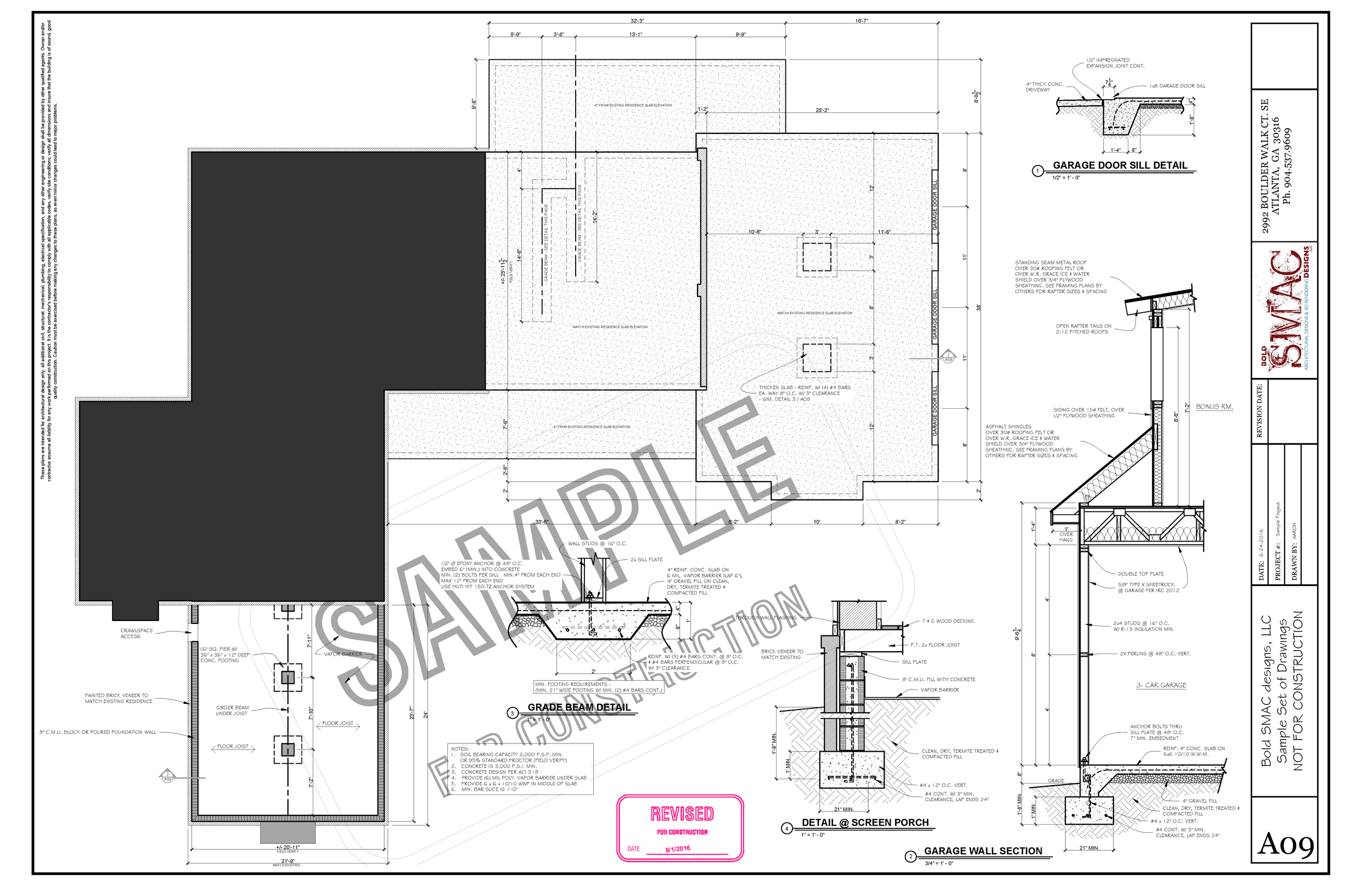
Foundation Plan

BoldSMAC supplies this page to all clients with footing details and any notes as a guideline for the client and builder.  It is the builder's responsibility to confirm all structural requirements with a licensed engineer and warranty the same.

 
Sample Set_Page_11.png

Roof Framing Plan

This page is provided if required.  It details out all roof slopes, member sizes, blocking, hips, valleys, ridges, and eaves.  It is the builder's responsibility to confirm all roof framing requirements with a licensed engineer and warranty the same.

 
Sample Set_Page_12.png

Additional Structure Page

If applicable, this page will show the details of any structure not part of the main structure.  This could be a detached garage, barn, shed, pool house, or guest house for example.